Du lundi au samedi de 9h à 19h.
LUCHON "MAISON POUZOULET"
Maison pour 6 personnes de 82 m², proche de la place du marché, de l'arrêt du bus thermal et 700 m de la télécabine pour Superbagnères.
Cette maison comprend :
- au rez-de-chaussée, une entrée, salle d'eau avec douche WC et lave-linge, un séjour , téléviseur, cuisine intégrée donnant sur le séjour (four, micro-ondes, lave-vaisselle, frigo congélateur) avec accès terrasse
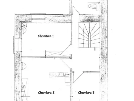
- au 1er étage : deux chambres avec chacune un lit en 140, lavabo, placard penderie. Une autre chambre avec deux lits superposés, lavabo et commode. WC séparé.
Garage - terrasse, jardin gravillonne et clôture.
En rdc au sol, carrelage. 1 er étage, lino.
Animaux admis.
Caution maison : 250€
Caution ménage : 115€
Prestations optionnelles à régler sur place et à réserver avant votre arrivée :
- Animaux : 25 €.
- Ménage Appt maisons 80 à 140 m² : 115 €.
- Draps 140 +taies : 10 €.
- Draps 90 + taie : 10 €.
- Serviettes (1 petite-1 grande) : 5 €.
Prestations obligatoires:
Taxe de séjour
Dépôt de garantie : chèques ou carte bancaire (détruit après départ)
Caution ménage
Supplément animaux s’ils sont autorisés (indiqués dans annonce, (détruit après départ))
Les arrivées tardives (après 18h) et les dimanches sont acceptées. IL EST IMPERATIF DE CONTACTER L'AGENCE LOCALE QUELQUES JOURS AVANT VOTRE ARRIVEE AFIN D'AVOIR LES MODALITES POUR RECUPERER LES CLES.
Les prestations optionnelles sont à réserver auprès de l'agence, à régler sur place (selon disponibilité).
Location de lit bébé: selon disponibilité et sur réservation uniquement.

D'une manière générale, voici les conditions d'annulation qui s'appliquent à cette maison de vacances. Des frais seront retenus en fonction du délai entre les dates d’annulation et le début de séjour selon le barème ci-dessous :
La date d’annulation est la date à laquelle l'agence reçoit par écrit votre demande d’annulation (email ou courrier écrit).
En général, les arrivées pour cette location s’effectuent entre 16h et 19h et les départs autour de 10h
Les horaires seront précisés sur les documents de voyage que vous recevrez après avoir soldé votre réservation.
Pour cette location, les chèques vacances ANCV sont acceptés.
(Voir les conditions)
![]()
Soyez couverts en cas d'imprévus ou de sinistres avec l'assurance location vacances par Trustiway.
Découvrez ce que nos clients pensent de Sun Location !