Du lundi au samedi de 9h à 19h.
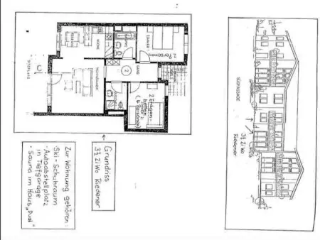
73 m2. Autres informations du fournisseur: On the outskirts of Laax, in an idyllic and quiet location, is the 3.5 room apartment Casa Migiur. The bright first floor apartment offers 73m2 of space for 6 guests. It has a garden with a terrace and barbecue, a bedroom with a double bed and a bedroom with two bunk beds.In the family bathroom there is a bathtub with toilet and sink. In the small bathroom there is a separate shower with toilet and sink.The kitchen is equipped with a ceramic hob, oven, dishwasher and a refrigerator with freezer compartment, coffee filter machine, raclette, cheese and chinoise fondue set. A TV, radio as well as WLAN are available for free use.
Bed linen, final cleaning and one set of terry linen per person are included in the total price, as well as the visitor's tax.Dogs are allowed in this apartment on request and will be charged 10 CHF/night on site. Likewise, the use of the sauna at the end of the stay will be charged with 12 CHF/use on site. 
Autres informations du fournisseur: From the apartment to the center of the village is only 5 minutes walk, as well as to the bus stop "Demvitg". The free local bus takes you in only 5 minutes to the mountain railroads to Laax Murschetg or to Flims. In the house there is a ski room where skis, snowboards as well as boots can be dried and stored. Via the underground garage you can reach the adjoining house Casa Dual, where a sauna is available for common use. A reservation book outside the sauna regulates the use. On request we are happy to provide a travel cot for small children. Arrêt de bus "Laax GR, Demvitg" 0.2 km, gare ferroviaire "Valendas-Sagogn" 2.0 km, ferry "Mols (See)" 34.6 km.

Conditions d'annulation qui s'appliquent pour cette location de vacances. Des frais seront retenus en fonction du délai entre la date d’annulation et le début du séjour (date d'arrivée prévue) selon le barème ci-dessous :
Le prix total de la réservation est facturé si l’annulation est notifiée plus tard que le 2ème jour avant le début du séjour ou de non-présentation.
Dans tous les cas, l’annulation devra être d’abord communiquée par téléphone et confirmée ensuite par écrit (courrier ou email).
Les annulations SANS FRAIS (hors frais de dossier et assurance) sont uniquement possibles si vous souscrivez à l'assurance annulation gratuite, qui vous permet d'être couverts en cas de maladie grave, hospitalisation, décès... à condition de fournir un justificatif.
En général, les arrivées pour cette location s’effectuent entre 16h et 19h et les départs autour de 10h
Les horaires seront précisés sur les documents de voyage que vous recevrez après avoir soldé votre réservation.
Pour cette location, les chèques vacances ANCV sont acceptés.
 (Voir les conditions)
        ![]()
Soyez couverts en cas d'imprévus ou de sinistres avec l'assurance location vacances par Trustiway.
Découvrez ce que nos clients pensent de Sun Location !