Du lundi au samedi de 9h à 19h.
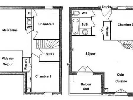
Magnifique appartement T4 mezzanine de 77m²(dont 16.00 m² à moins d'1.80m) et disposant d'un beau balcon de 5.80m². Situé à une dizaine de minutes des Saisies dans un secteur calme en bordure du domaine alpin vous offrant une vue imprenable sur les montagnes environnantes. Place de parking privative couverte comprise avec le logement.
Etage: 1er,
Couchages: 9,
Détails du logement:
- Séjour : 1 canapé convertible,
- Chambre 1 : 1 lit de 140,
- Chambre 2 : 2 lits 80,
- Chambre 3 : 1 lit 140,
- Mezzanine : 1 lit gigogne,
- 2 Salles de bains : 1 baignoire, 1 douche,
- 2 WC séparés,
Exposition: SUD, avec vue extraordinaire,
Remarques:
Equipements particuliers : lave-vaisselle, lave-linge, téléviseur, lecteur DVD, four à raclette, cafetière électrique, grille pain, bouilloire, téléphone ([hidden]),lit bébé, acces Wifi, ( sous reserve) ,réhausseur bébé fer et table à repasser, salon de jardin...
Literie: 17 oreillers, 3 couettes 140, 4 couettes 90.
Un casier à skis est à votre disposition, ainsi qu'une cave.
Appartement tout équipé, ( non fourni draps et linge de maison ),
Produits entretiens non fournis
Animaux tolérés.
Emplacement de parking couvert n°29, première entrée près des boîtes aux lettres, puis avant dernier parking au fond à gauche.
Prestations optionnelles à régler sur place et à réserver avant votre arrivée :
Ménage Fin de séjour 70-79 : 109.0 €.
Tapis de bain : 3.5 €.
Kit serviette : 9.5 €.
Location chaise bébé : 11.0 €.
Kit couette petit lit 80 (dh + hc + t) : 16.0 €.
Location lit bébé : 16.0 €.
Kit couette gd lit 140 (dh+hc+2t) : 20.0 €.
Résidence mgm qualitative située à Bisanne 1500 au 1001 route des Rosières à 6kms des Saisies. Vue panoramique, bordure immédiate des pistes, arrêt navette gratuite à 100m, Caisse Rm et supérette à 400m.
Prestations obligatoires (à régler sur place) :
Dépôt de garantie.
Caution ménage.
Taxe de séjour : à régler selon tarifs en vigueur.
Si animal admis dans le logement, il n'y a pas de supplément.
Si arrivée en dehors de ces horaires (panne, accident), avertir l'agence:
- Boite à clés
Prestations optionnelles (à régler sur place) sous réserve de disponibilité :
Prestation ménage de fin de séjour ; A régler sur place, montant selon type de logement
Location de linge de maison.
Location de matériel de puériculture selon la disponibilité
Location Box WiFi
Location parking
Comment s'y rendre : l'agence se trouve à côté de la pharmacie sur la rue principale sur le haut des Saisies. La station est située sur un col et dispose de 2 accès possibles différents: Par Albertville-Beaufort. Par Sallanches-Megève-Notre Dame de Bellecombe. Par route:autoroute jusqu'à ALBERTVILLE puis 31km par la D925. Autoroute jusqu'à SALLANCHES puis 45km par la D1212 et la D218. ATTENTION: Les Gorges de l'Arly sont souvent fermées, privilégier l'accès coté Albertville-Beaufort. L'accès côté Notre Dame de Bellecombe est possible bien qu'en général plus enneigé et plus long entre Sallanches-Megève-Notre Dame de Bellecombe lors de mauvaises conditions.
Contacter l'agence à l'avance pour le paiement du dépôt de garantie en ligne ou par chèque.

D'une manière générale, voici les conditions d'annulation qui s'appliquent à cette maison de vacances. Des frais seront retenus en fonction du délai entre les dates d’annulation et le début de séjour selon le barème ci-dessous :
La date d’annulation est la date à laquelle l'agence reçoit par écrit votre demande d’annulation (email ou courrier écrit).
En général, les arrivées pour cette location s’effectuent entre 16h et 19h et les départs autour de 10h
Les horaires seront précisés sur les documents de voyage que vous recevrez après avoir soldé votre réservation.
Pour cette location, les chèques vacances ANCV sont acceptés.
(Voir les conditions)
![]()
Soyez couverts en cas d'imprévus ou de sinistres avec l'assurance location vacances par Trustiway.
Découvrez ce que nos clients pensent de Sun Location !