Du lundi au samedi de 9h à 19h.
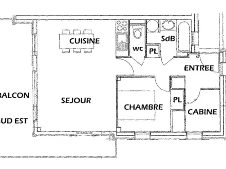
- APPARTEMENT type 2 PIECES + CABINE 1 SALLE DE BAIN,(réference: AMEL04)
- Surface : 42,81 m², balcon sud est et est nord-est : 13,78 m²,
- Etage : 1er étage,
- Couchages : 6 / 7
- Séjour : 1 canapé lit 2 places 140,
- Chambre : 1 lit 160x200,
- Cabine : 1 lit de 140*190+1 lit superposé 80*190
- Salle de bain : baignoire, 1 WC séparé,
- Exposition : SUD EST et EST NORD-EST avec vue bucolique sur la station, la forêt et la chapelle,
- Equipements particuliers : télévision LCD, lave vaisselle, lave linge, four micro ondes, plaques vitro céramiques 3 feux, cafetière électrique, appareil à raclette, grille pain...
- LITERIE: 8 oreillers, 1 couverture 160, 2 couverture 140, 1 couettes 90, 3 couette 140.
- REMARQUES
- Appartement tout équipé, (non fourni : draps et linge de maison), Produits entretiens non fournis
- Un casier à skis est à votre disposition,
- Appartement non fumeur
- Animaux refusés
Prestations optionnelles à régler sur place et à réserver avant votre arrivée :
Pocket Wifi - 7 jours : 39.0 €.
Ménage Fin de séjour 40-49 : 79.0 €.
Tapis de bain : 3.5 €.
Kit serviette : 9.5 €.
Location chaise bébé : 11.0 €.
Kit couette petit lit 80 (dh + hc + t) : 16.0 €.
Location lit bébé : 16.0 €.
Kit couette gd lit 140 (dh+hc+2t) : 20.0 €.
Résidence qualitative située quartier la Forêt au 443 route de la Forêt. Ambiance montagne et tranquille. Pistes 250m, Bus, caisse rm et superette en hiver 250m, Centre 3kms.
Prestations obligatoires (à régler sur place) :
Dépôt de garantie.
Caution ménage.
Taxe de séjour : à régler selon tarifs en vigueur.
Si animal admis dans le logement, il n'y a pas de supplément.
Si arrivée en dehors de ces horaires (panne, accident), avertir l'agence:
- Boite à clés
Prestations optionnelles (à régler sur place) sous réserve de disponibilité :
Prestation ménage de fin de séjour ; A régler sur place, montant selon type de logement
Location de linge de maison.
Location de matériel de puériculture selon la disponibilité
Location Box WiFi
Location parking
Comment s'y rendre : l'agence se trouve à côté de la pharmacie sur la rue principale sur le haut des Saisies. La station est située sur un col et dispose de 2 accès possibles différents: Par Albertville-Beaufort. Par Sallanches-Megève-Notre Dame de Bellecombe. Par route:autoroute jusqu'à ALBERTVILLE puis 31km par la D925. Autoroute jusqu'à SALLANCHES puis 45km par la D1212 et la D218. ATTENTION: Les Gorges de l'Arly sont souvent fermées, privilégier l'accès coté Albertville-Beaufort. L'accès côté Notre Dame de Bellecombe est possible bien qu'en général plus enneigé et plus long entre Sallanches-Megève-Notre Dame de Bellecombe lors de mauvaises conditions.
Contacter l'agence à l'avance pour le paiement du dépôt de garantie en ligne ou par chèque.

D'une manière générale, voici les conditions d'annulation qui s'appliquent à cette maison de vacances. Des frais seront retenus en fonction du délai entre les dates d’annulation et le début de séjour selon le barème ci-dessous :
La date d’annulation est la date à laquelle l'agence reçoit par écrit votre demande d’annulation (email ou courrier écrit).
En général, les arrivées pour cette location s’effectuent entre 16h et 19h et les départs autour de 10h
Les horaires seront précisés sur les documents de voyage que vous recevrez après avoir soldé votre réservation.
Pour cette location, les chèques vacances ANCV sont acceptés.
(Voir les conditions)
![]()
Soyez couverts en cas d'imprévus ou de sinistres avec l'assurance location vacances par Trustiway.
Découvrez ce que nos clients pensent de Sun Location !